Apprendre – se divertir
Apprendre – se divertir

Centre Jean Labellie, Espace Culturel et Sportif au Rouget

15290 LE ROUGET PERS - Cantal - Auvergne-Rhône-Alpes

BÂTIMENT / LOGEMENT

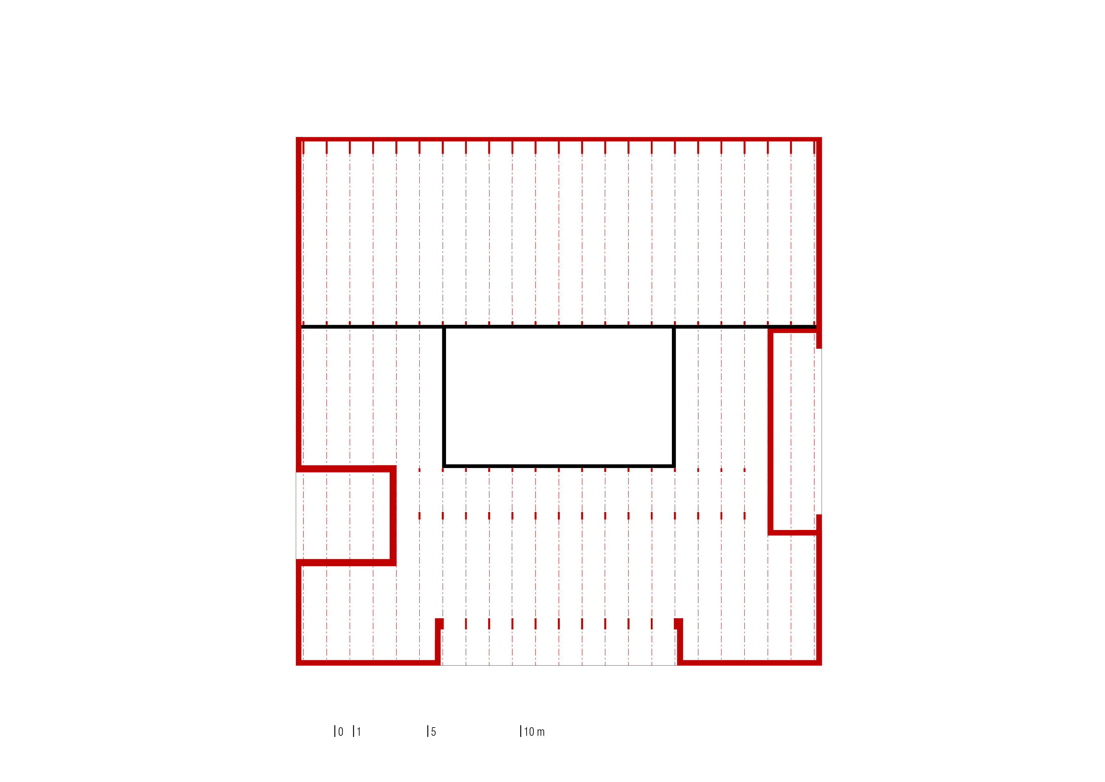
Le volume de l’édifice, à plan carré, est simple. Sa coupe révèle une toiture à pente unique qui suit le profil du terrain naturel. Cinq creux sont percés dans le volume recouvert de bardage en zinc ondulé : un porche d’entrée à l’Est, une loggia au Sud, un patio à l’Ouest, une grande baie au Nord, et une toiture terrasse en dépression dans le toit apportant un éclairage indirect. Ces creux sont caractérisés par leur matérialité en bois.

Catégorie Bâtiment / logement
Numéro de projet8057
Adresse du projet Rue des écoles
15290 LE ROUGET PERS
Date de candidature09/03/2023

Bâtiment / logement

Détail projet

Typologie de bâtiment : Neuf
Type de bâtiment : Loisirs,Enseignement ou éducation,Culture,Sport
Année de livraison : 2021
Surface totale du bâtiment en m² : 673
Coût total en € HT (hors foncier, hors VRD, hors honoraires) : 1450000
Lot bois n°1 concerné : Charpente bois,ossature bois
Volume lot bois n°1 - m³ : 63
Coût du lot bois n°1 - € HT : 291457
Lot bois n°2 concerné : Menuiserie intérieure bois
Coût du lot bois n°2 - € HT : 170958
Bois Français : oui
Matériaux issus du ré-emploi (préciser dans le descriptif technique) : non
Isolations biosourcées (préciser dans le descriptif technique) : oui
Matériaux géosourcés (préciser dans le descriptif technique) : non
Finitions intéreures biosourcées ou géosourcées (préciser dans le descriptif technique) : oui

Structure bois du bâtiment

Structure verticale :

ProduitEssenceProvenances (lieu de croissance du bois)Traitements de préservationMarque et certification produit
Poteau poutreDouglasAuvergne-Rhône-AlpesAucun traitementJe n'ai pas l'information

Structure horizontale :

ProduitEssenceProvenances (lieu de croissance du bois)Traitements de préservationMarque et certification produit
Plancher béton

Charpente :

ProduitEssenceProvenances (lieu de croissance du bois)Traitements de préservationMarque et certification produit
Charpente bois lamellé-colléDouglasAuvergne-Rhône-AlpesAucun traitementJe n'ai pas l'information

Revêtement bois extérieur

Revêtement bois ou dérivés :

ProduitEssenceProvenances (lieu de croissance du bois)Marque et certification produitFinitionTraitements de préservation
Lame bois massifDouglasAuvergne-Rhône-AlpesJe n'ai pas l'informationAucune finitionAucun traitement

Autre revêtement métallique :

Produit
Zinc

Menuiserie intérieure et extérieure

Menuiserie intérieure :

ProduitEssenceProvenances (lieu de croissance du bois)FinitionMarque et certification produit
Panneau acoustiquePin sylvestreAuvergne-Rhône-AlpesAutres Je n'ai pas l'information

Menuiserie extérieure :

ProduitEssenceProvenances (lieu de croissance du bois)Marque et certification produitFinition
Menuiserie boisAuvergne-Rhône-AlpesJe n'ai pas l'informationHuile

Isolation des murs

Isolation entre-montant des murs :

Produit
Epaisseur (mm) Isolation entre-montant des murs : 200

Isolation de la toiture

Epaisseur (mm) Isolation entre-montant de la toiture : 350

Approche environnementale : L’ensemble des murs sont à ossature bois et sont isolés en ouate de cellulose ainsi que la toiture mono pente. Le bois est privilégié tant pour l’atmosphère qu'il génère dans les espaces intérieurs que pour sa capacité de stockage du carbone et son bilan écologique. Le bois est mise à l’honneur pour l’ensemble des plafonds acoustiques, le mobilier en pin sylvestre et en panneaux plaqués pin des Landes, pour le parquet en chêne de la salle polyvalente qui sert de salle de danse et yoga.La provenance du bois est très majoritairement locale, les gisements étant concentrés dans le Massif Central

Descriptif technique : L’expression du volume bâti est d’une grande simplicité. Il prend la forme d’un monolithe en zinc naturel à plan carré (28m50 de côté environ). Une grande compacité du volume a été recherchée : optimiser la densité permet de réduire la quantité de ressources mise en œuvre, de réduire la consommation de sol pour répondre à un programme donné et permet d’améliorer la performance thermique de l’édifice. La structure intérieure en bois, composée de portiques en lamellé-collé de douglas, caractérise les espaces. La trame constructive est de 125cm. Les portiques se composent de 5 poteaux. En partie centrale, les arbalétriers sont interrompus par le noyau en béton. Les sections des poteaux varient, elles sont déterminées par des questions d’usage et de programme que par la descente de charge.

Chauffage au Bois : non
Données déclaratives

Acteurs du projet

Maître d'ouvrage (2)

Maître d'ouvrage - État ou collectivité (locale et territ)

COMMUNE DE LE ROUGET PERS (15)
COMM COM CHATAIGNERAIE CANTALIENNE (15)

Etudes et ingénieries (6)

Maître d'œuvre - Architecte mandataire

ATELIER DU ROUGET SIMON TEYSSOU ET ASSOCIES (15)

Bureau d'études acoustique

SIGMA ACOUSTIQUE (12)

Bureau d'études structure bois

BUREAU INGENIERIE MODELING (BIM.B) (82)

Bureau d'études thermique

INGENIERIE GENERALE TECHNIQUES DE LA CONSTRUCTION (IGETEC) (15)

Economiste

INGENIERIE GENERALE TECHNIQUES DE LA CONSTRUCTION (IGETEC) (15)

Paysagiste

ATELIER DU ROUGET SIMON TEYSSOU ET ASSOCIES (15)

Entreprises des lots bois (2)

Charpentier

MENUISERIE BOUYSSE (15)

Menuisier

particulier (x)

Fournisseurs du bois (6)

Scierie

SCIERIE FILAIRE (43)
GALLIEN BOIS (43) *
SCIERIE ELP BOIS (63)
DUBOT BOIS ET SCIERIES (63)
SCIERIE BONHOMME (15)

Industriel

BOIS COLLES D'AUVERGNE (BCA) (63)




* : L'entreprise n'est plus active
Retour à la liste