Habiter ensemble, Réhabiliter un logementHabiter ensemble, Réhabiliter un logement
Habiter ensemble, Réhabiliter un logement

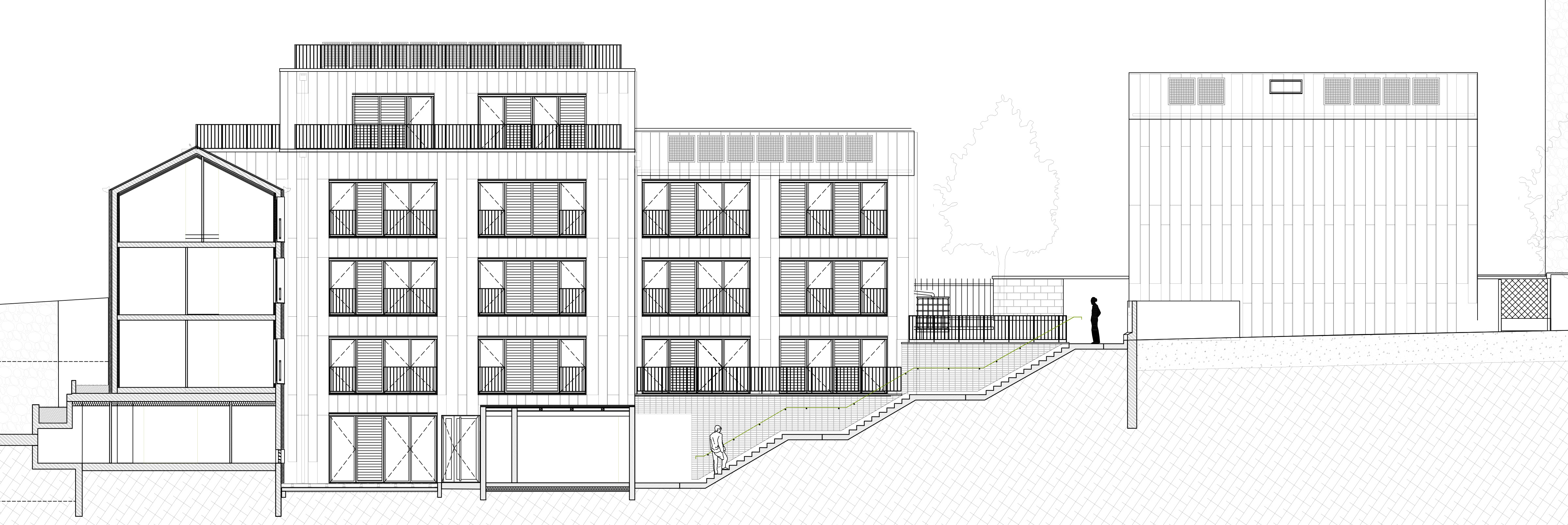
13 logements en coeur d'ilot

75020 PARIS 20 - Paris - Ile de France

BÂTIMENT / LOGEMENT

Cette opération s’inspire des vieux ateliers en briques et zinc encore présents dans le tissu faubourien de Belleville. Elle comprend la construction de 2 bâtiments en cœur d’ilot et la transformation d’un parking et logement existant. Les bâtiments neufs réalisés par SNERCT Construction sont en structure bois SUTEKIWOOD, système constructif développé par KIWOOD inspiré de la tradition japonaise. Les poteaux-poutres en bois lamellé-collé conçus hors-site s’assemblent sur le chantier comme un jeu de Légo grâce à des connecteurs sans vis.

Catégorie Bâtiment / logement
Numéro de projet8134
Date de candidature15/09/2023

Bâtiment / logement

Détail projet

Typologie de bâtiment : Neuf,Rénovation / Réhabilitation
Type de bâtiment : Logement collectif
Année de livraison : 2023
Surface totale du bâtiment en m² : 748
Coût total en € HT (hors foncier, hors VRD, hors honoraires) : 3650000
Volume lot bois n°1 - m³ : 103
Coût du lot bois n°1 - € HT : 400000
Bois Français : oui
Matériaux issus du ré-emploi (préciser dans le descriptif technique) : oui
Isolations biosourcées (préciser dans le descriptif technique) : oui
Matériaux géosourcés (préciser dans le descriptif technique) : oui
Finitions intéreures biosourcées ou géosourcées (préciser dans le descriptif technique) : oui

Structure bois du bâtiment

Structure verticale :

ProduitEssenceProvenances (lieu de croissance du bois)Traitements de préservationMarque et certification produit
Poteau poutreDouglasEuropeAucun traitementJe n'ai pas l'information

Structure horizontale :

ProduitEssenceProvenances (lieu de croissance du bois)Traitements de préservationMarque et certification produit
Solivage traditionnelDouglasEuropeAucun traitementJe n'ai pas l'information

Charpente :

ProduitEssenceProvenances (lieu de croissance du bois)Traitements de préservationMarque et certification produit
Charpente bois lamellé-colléDouglasEuropeAucun traitementJe n'ai pas l'information

Revêtement bois extérieur

Menuiserie intérieure et extérieure

Isolation des murs

Epaisseur (mm) Isolation intérieure des murs : 80
Epaisseur (mm) Isolation entre-montant des murs : 120

Isolation de la toiture

Epaisseur (mm) Isolation intérieure de la toiture : 80
Epaisseur (mm) Isolation entre-montant de la toiture : 240

Approche environnementale : Energie • Performance énergétique : Etiquette B (Conso inf. à 60 kWhep/m²/an) • Moyenne à Paris : Etiquette D (204 kWhep/m²/an) • Production d’énergie photovoltaïque : 7.6 kWc (Kilo Watt Crête) Carbone • Volume de bois posé : 103 m3 • Volume d’isolant biosourcé : 80m3 • Carbone stocké : 96 T.Co2

Descriptif technique : L’impossibilité d’implanter une grue à tour a imposé l’excavation de 1.000m3 de terre au Bobcat et l’approvisionnement du chantier au travers la porte du parking existant. Les bâtiments neufs sont en structure bois 1D SUTEKIWOOD, système constructif développé par KIWOOD, inspiré de la tradition japonaise. Les poteaux-poutres en bois lamellé collé conçus hors-site s’assemblent sur le chantier comme un jeu de légo grâce à des connecteurs sans vis.

Performance du bâtiment (Cep en kWhep/m²/an) : 60
Chauffage au Bois : non
Certifications, labels et marques bâtiment : HQE
Données déclaratives

Acteurs du projet

Maître d'ouvrage (1)

Maître d'ouvrage - Bailleur social public

HABITAT SOCIAL FRANCAIS (75)

Etudes et ingénieries (2)

Maître d'œuvre - Architecte mandataire

Prinvault (75)

Bureau d'études acoustique

AIDA (75)

Entreprises des lots bois (2)

Charpentier

SN ERCT CONSTRUCTION (94)

Constructeur bois

KI WOOD (SUTEKIWOOD) (94)




* : L'entreprise n'est plus active
Retour à la liste