Apprendre – se divertir
Apprendre – se divertir

Construction de l'école maternelle Mermoz

93110 ROSNY SOUS BOIS - Seine Saint Denis - Ile de France

BÂTIMENT / LOGEMENT

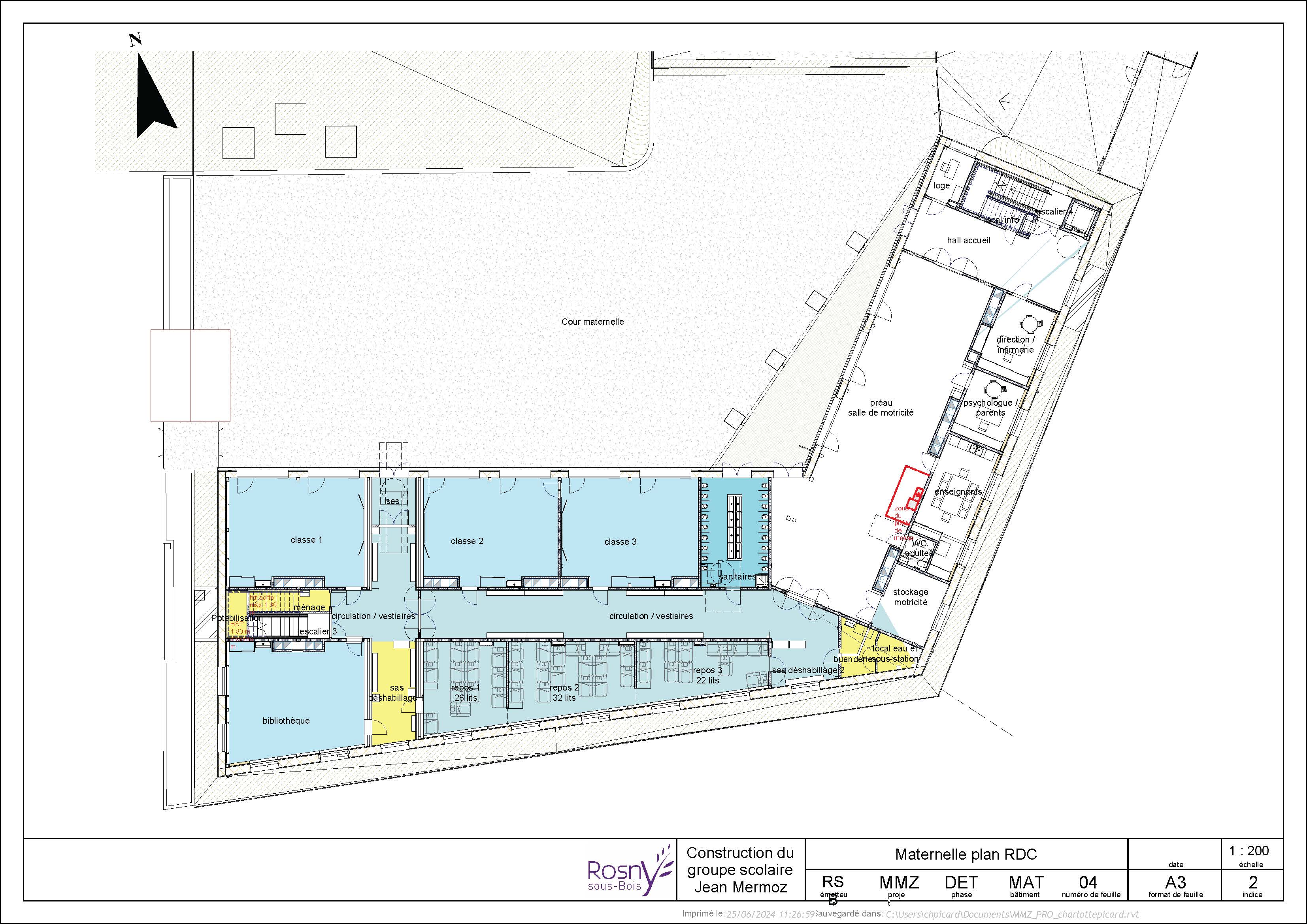
La construction de la maternelle Mermoz s'inscrit dans un projet plus large de restructuration d’un groupe scolaire existant à Rosny-sous-Bois. Le groupe scolaire Mermoz sera scindé à terme en deux groupes scolaires comprenant chacun une maternelle, une élémentaire et un restaurant scolaire. Le recours aux matériaux biosourcés et géosourcés locaux, le sourcing d'entreprises locales, les chantiers participatifs et actions pédagogiques pour les enfants sont autant d'actes mis en place pour converger vers un changement culturel nous permettant de faire face à l'avenir.

Catégorie Bâtiment / logement
Numéro de projet9415
Adresse du projet 35 rue Jean Mermoz
93110 ROSNY SOUS BOIS
Date de candidature03/03/2025

Bâtiment / logement

Détail projet

Typologie de bâtiment : Neuf
Type de bâtiment : Enseignement ou éducation
Année de livraison : 2024
Surface totale du bâtiment en m² : 1700
Coût total en € HT (hors foncier, hors VRD, hors honoraires) : 7600000
Lot bois n°1 concerné : Charpente bois
Volume lot bois n°1 - m³ : 240
Coût du lot bois n°1 - € HT : 487880
Lot bois n°2 concerné : Bardage bois
Volume lot bois n°2 - m³ : 872
Coût du lot bois n°2 - € HT : 102900
Bois Français : oui
Matériaux issus du ré-emploi (préciser dans le descriptif technique) : non
Isolations biosourcées (préciser dans le descriptif technique) : oui
Matériaux géosourcés (préciser dans le descriptif technique) : oui
Finitions intéreures biosourcées ou géosourcées (préciser dans le descriptif technique) : oui

Structure bois du bâtiment

Structure verticale :

ProduitEssenceProvenances (lieu de croissance du bois)Traitements de préservationMarque et certification produit
Poteau poutreChâtaignierÎle-de-FranceAucun traitement

Structure horizontale :

ProduitEssenceProvenances (lieu de croissance du bois)Traitements de préservationMarque et certification produit
Solivage traditionnelChâtaignierÎle-de-FranceAucun traitement

Charpente :

ProduitEssenceProvenances (lieu de croissance du bois)Traitements de préservationMarque et certification produit
Charpente traditionnelleChâtaignierÎle-de-FranceAucun traitement

Revêtement bois extérieur

Revêtement bois ou dérivés :

ProduitEssenceProvenances (lieu de croissance du bois)Marque et certification produitFinitionTraitements de préservation
Bardeau boisChâtaignierÎle-de-FranceJe n'ai pas l'informationAucune finitionAucun traitement

Revêtement minéral :

Produit
Enduit chaux

Menuiserie intérieure et extérieure

Menuiserie intérieure :

ProduitEssenceProvenances (lieu de croissance du bois)FinitionMarque et certification produit
EscalierHêtreFranceHuile

Menuiserie extérieure :

ProduitEssenceProvenances (lieu de croissance du bois)Marque et certification produitFinition
Menuiserie boisPin sylvestreFranceJe n'ai pas l'informationPeinture

Isolation des murs

Isolation extérieure des murs :

Produit
Paille
Epaisseur (mm) Isolation extérieure des murs : 370

Isolation de la toiture

Approche environnementale : De conception bioclimatique, le bâtiment est volontairement compact et les salles de classes sont côté cour. Les larges débords de toiture protègent efficacement la peau extérieure constituée de paille bio enduite ou bardée selon le contexte. L'inertie du bâtiment a été renforcé par la mise en place d'un doublage intérieur en briques de terre crue compressée. La ventilation naturelle couplée à des puits climatiques, la possibilité de sur-ventilation nocturne, la présence de brasseurs d'air concourent eux aussi à un très grand confort d'été. Démarche bâtiment durable francilien niveau Or

Descriptif technique : Structure poteaux-poutres treillis en châtaignier massif français, caissons planchers châtaignier fermés par voliges pin, Caissons de toitures en châtaignier fermés par panneaux MFP, isolant coton recyclé, Murs manteaux paille bio francilienne enduite 2 faces et bardage bois châtaignier ponctuellement, Murs porteurs briques de terre crue comprimées, Cage ascenseur structure bois poteaux poutres, Cloisons ossature bois peuplier, panneaux argile, enduit argile, Parquet chêne massif (bibliothèque), Faux-plafonds et gaines de ventilation naturelle en fibres de bois, Peinture végétale biosourcée, Système de ventilation naturelle avec récupération de chaleur couplé à des puits climatiques, Récupération des eaux pluviales, Poêle de masse à buches en complément du chauffage par géothermie.

Performance du bâtiment (Cep en kWhep/m²/an) : 51
Chauffage au Bois : oui
Appareil de chauffage au bois : Poële/insert
Certifications, labels et marques bâtiment : Bois Bûche
Données déclaratives

Acteurs du projet

Maître d'ouvrage (1)

Maître d'ouvrage - État ou collectivité (locale et territ)

COMMUNE DE ROSNY-SOUS-BOIS (93)

Etudes et ingénieries (3)

Maître d'œuvre - Architecte mandataire

COMMUNE DE ROSNY-SOUS-BOIS (93)

Bureau d'études structure bois

COMMUNE DE ROSNY-SOUS-BOIS (93)

Bureau d'études thermique

COMMUNE DE ROSNY-SOUS-BOIS (93)

Entreprises des lots bois (3)

Charpentier

RIALLAND (95)

Autre lot de la construction (en lien avec le bois)

DEPUIS 1920 (93)
Ravalement de Paris (75)

Fournisseurs du bois (1)

Scierie

Dupriez Lepinette (60)




* : L'entreprise n'est plus active
Retour à la liste