Apprendre – se divertir
Apprendre – se divertir

Ecole maternelle Marcel Pagnol - Pamiers

09100 PAMIERS - Ariège - Occitanie

BÂTIMENT / LOGEMENT

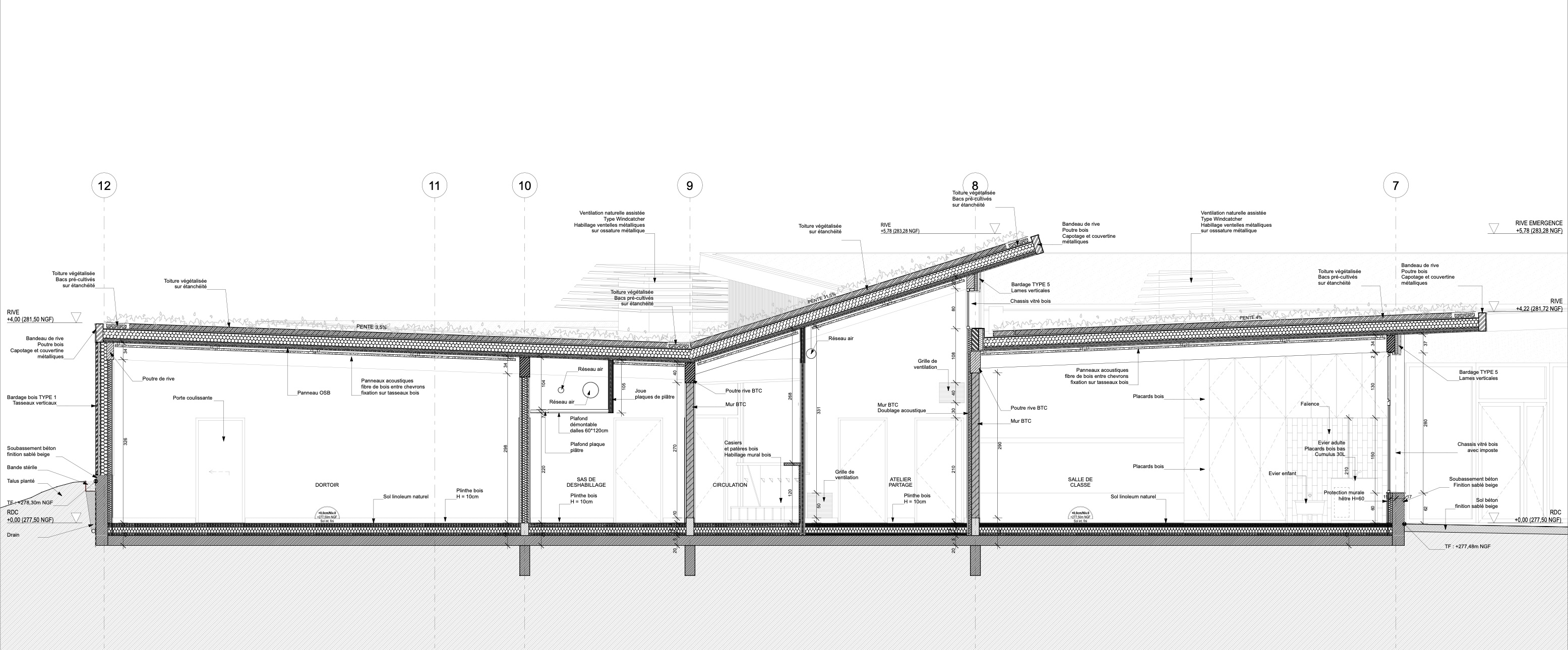
Le caractère insulaire et la structure paysagère du site ont guidé la conception d’un projet global où le bâtiment et le jardin ne forme qu’une seule entité. L’ensemble est connecté avec la ville par la création de passerelles piétonnes. L’école et ses espaces extérieurs s’articulent sur le site en suivant la morphologie de l’île. Elle s’organise en 5 volumes en rez-de-chaussée décalés qui créent des respirations et des vues vers l’extérieur. Tel un sol soulevé, la toiture végétalisée dialogue avec le site. Les variations de hauteur correspondent aux typologies des espaces qu’elle abrite.

Catégorie Bâtiment / logement
Numéro de projet9621
Adresse du projet Promenade des Maquisards
09100 PAMIERS
Date de candidature11/03/2025

Bâtiment / logement

Détail projet

Typologie de bâtiment : Neuf
Type de bâtiment : Enseignement ou éducation
Année de livraison : 2024
Surface totale du bâtiment en m² : 1730
Coût total en € HT (hors foncier, hors VRD, hors honoraires) : 4200000
Lot bois n°1 concerné : Charpente bois,Bardage bois,ossature bois
Coût du lot bois n°1 - € HT : 830000
Lot bois n°2 concerné : Menuiserie intérieure bois,Menuiserie extérieure bois
Coût du lot bois n°2 - € HT : 480000
Bois Français : oui
Matériaux issus du ré-emploi (préciser dans le descriptif technique) : non
Isolations biosourcées (préciser dans le descriptif technique) : oui
Matériaux géosourcés (préciser dans le descriptif technique) : oui
Finitions intéreures biosourcées ou géosourcées (préciser dans le descriptif technique) : oui

Structure bois du bâtiment

Structure verticale :

ProduitEssenceProvenances (lieu de croissance du bois)Traitements de préservationMarque et certification produit
Poteau poutreDouglasAuvergne-Rhône-AlpesJe n'ai pas l'informationJe n'ai pas l'information
Panneau ossature boisÉpicéa communOccitanieJe n'ai pas l'informationJe n'ai pas l'information

Structure horizontale :

ProduitEssenceProvenances (lieu de croissance du bois)Traitements de préservationMarque et certification produit
Solivage traditionnelÉpicéa communEuropeJe n'ai pas l'informationJe n'ai pas l'information

Charpente :

ProduitEssenceProvenances (lieu de croissance du bois)Traitements de préservationMarque et certification produit
Charpente bois lamellé-colléÉpicéa communEuropeJe n'ai pas l'informationJe n'ai pas l'information

Revêtement bois extérieur

Revêtement bois ou dérivés :

ProduitEssenceProvenances (lieu de croissance du bois)Marque et certification produitFinitionTraitements de préservation
Lame bois massifMélèzeOccitanieJe n'ai pas l'informationSaturateurJe n'ai pas l'information
Lame bois massifDouglasOccitanieJe n'ai pas l'informationAucune finitionAucun traitement

Menuiserie intérieure et extérieure

Menuiserie intérieure :

ProduitEssenceProvenances (lieu de croissance du bois)FinitionMarque et certification produit
MobilierHêtreOccitanieVernisJe n'ai pas l'information

Menuiserie extérieure :

ProduitEssenceProvenances (lieu de croissance du bois)Marque et certification produitFinition
Menuiserie boisChâtaignierOccitanieJe n'ai pas l'informationVernis

Isolation des murs

Isolation intérieure des murs :

Produit
Isolant textile
Epaisseur (mm) Isolation intérieure des murs : 80

Isolation entre-montant des murs :

Produit
Fibre de bois (Panneaux)
Epaisseur (mm) Isolation entre-montant des murs : 140

Isolation de la toiture

Epaisseur (mm) Isolation intérieure de la toiture : 40
Epaisseur (mm) Isolation extérieure de la toiture : 240

Approche environnementale : Une attention particulière est portée sur le confort des enfants à travers les orientations solaires, la qualité de la lumière naturelle, le type de chauffage et de ventilation mais aussi la mise en œuvre de matériaux locaux, naturels et régulateurs d’hygrothermie. La géothermie associée à une PAC et un plancher chauffant-rafraîchissant permet d’utiliser une source d’énergie gratuite pour le chauffage et une partie du rafraîchissement. Pour la ventilation, nous avons proposé un système mixte double flux et ventilation naturelle avec prises d'air en façade et tirage par cheminées de toit.

Descriptif technique : La structure est composées exclusivement de mur à ossatures bois et de poteaux poutre en bois lamellé collé. La charpente est formé par des poutres lamelées collées et des poutres en bois massif. Nous avons privilégié l’utilisation de bois local des Pyrénées (bois massif des structures MOB, bardages bois et menuiseries intérieures et extérieures bois). Les façades sont constituées d’un socle en béton sablé révélant les agrégats qui rappelle les gravières et les galets présents dans la ville de Pamiers. La géothermie associée à une PAC et un plancher chauffant rafraîchissant permet d’utiliser une source d’énergie gratuite pour le chauffage et une partie du rafraîchissement. Au niveau de la ventilation nous avons réfléchi à un système mixte double flux/ventilation naturelle.

Performance du bâtiment (Cep en kWhep/m²/an) : 63
Chauffage au Bois : non
Certifications, labels et marques bâtiment : Aucun
Données déclaratives

Acteurs du projet

Maître d'ouvrage (1)

Maître d'ouvrage - État ou collectivité (locale et territ)

Commune de Pamiers (09)

Etudes et ingénieries (7)

Maître d'œuvre - Architecte mandataire

OECO ARCHITECTES (31)

Bureau d'études acoustique

EMACOUSTIC (31)

Bureau d'études structure bois

TPF INGENIERIE (TPFI) (13)

Bureau d'études environnement

SCOP ECOZIMUT (31)

Bureau d'études thermique

SCOP ECOZIMUT (31)

Economiste

ALAYRAC (31)

Paysagiste

ESKIS PAYSAGISTES (34)

Entreprises des lots bois (4)

Charpentier

SCOP COUSERANS CONSTRUCTION (09)

Menuisier

HIJOSA ET FILS (09)
SARL PHILIPPE MORERE (09)

Autre lot de la construction (en lien avec le bois)

ANTRAS OSSATURE BOIS (31)

Fournisseurs du bois (3)

Scierie

BOIS SANCHEZ (09)
COMMERCE DE BOIS ET TRANSPORTS MOULIN (43)
DUBOT BOIS ET SCIERIES (63)

Autres (1)

Photographe

DOLMAIRE KEVIN (42)




* : L'entreprise n'est plus active
Retour à la liste